東区牛田東3丁目【リビングからつながる半屋外テラスのあるお家】
2026/01/05
周辺おでかけLIST
- ショージ牛田店:徒歩6分
- ウォンツ牛田店(サンベルモ):徒歩14分
- セブンイレブン広島牛田店:徒歩5分
- ローソン広島女学院前店:徒歩9分
- 牛田小学校:徒歩17分
- 牛田中学校:徒歩41分
- あやめ幼稚園:徒歩11分
- わかくさ保育園:徒歩23分
【オール電化】
オール電化の普及は2000年頃から始まり、年々進んでいます。 電力を有効に使うことで省エネ性能も高まり、光熱費を抑えながら快適に過ごすことができます。
【エコキュート】
空気の熱でお湯を沸かす、電気給湯機です。 環境にやさしく、省エネ効果もあります。
【IHクッキングヒーター】
火を使わないので安全性が高く、お手入れも簡単、二酸化炭素の発生や不完全燃焼の心配もないのでおうちの空気もきれいです。
【抗ウィルス/抗菌天然銘木フローリング】
家の床材は快適さや美しさだけでなく、清潔さも重要な要素です。 天然木ならではの意匠性を保ちながら、SIAA(抗菌製品技術協議会)の認証を得た抗ウイルス・抗菌性能を持つ、「ハイジェニック」仕様な床材です。
【アイランドキッチン】
壁と接する部分が無く、部屋の中で島(=アイランド)のようになっているキッチンです。 両側から出入りできるので開放感と回遊性があり、家族でお料理が楽しめます。
【インナーバルコニー】
屋根があり、半屋内化しているバルコニーです。 天候を心配する必要がなく、普通のベランダよりも多様な使い方ができます。
【ウォークインクローゼット】
物件選びの一つのポイントとも称されているウォークイン・クローゼットです。
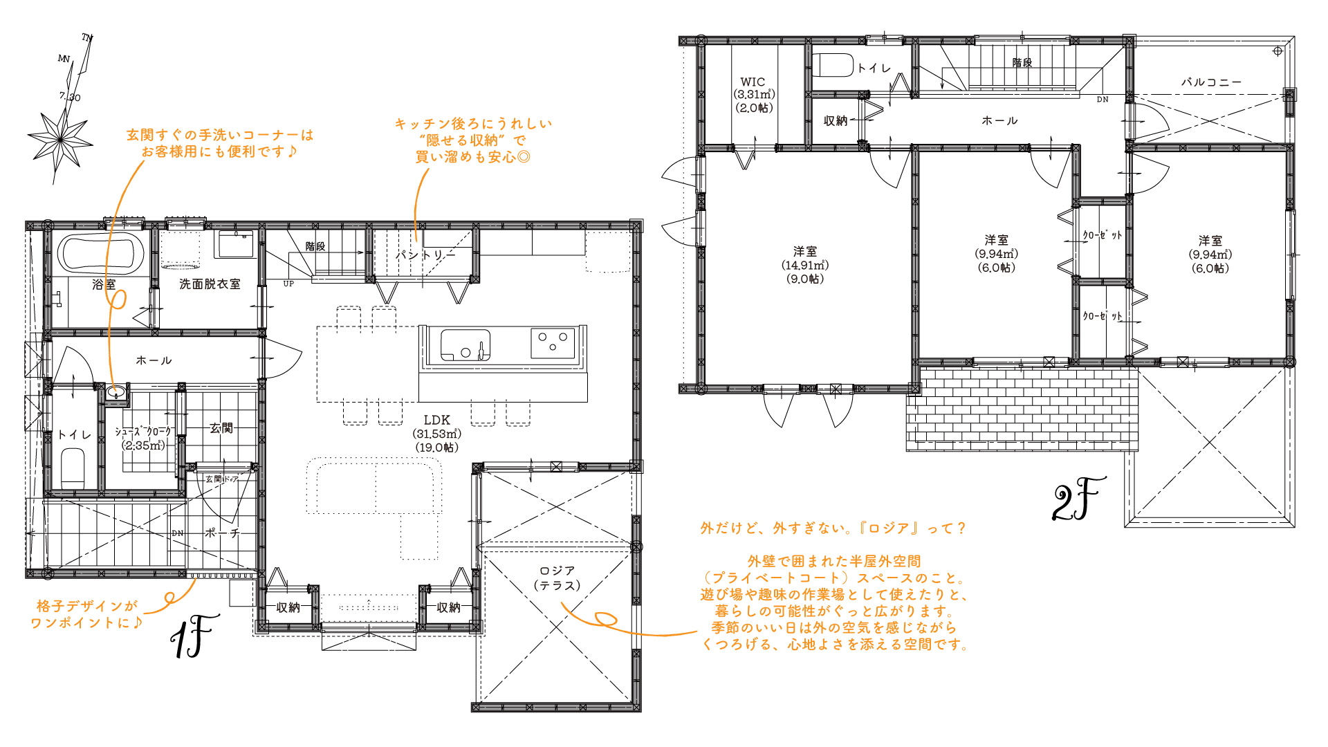
【テラス】
お庭やリビングの延長として過ごせるテラススペース。 夏場のプールはもちろん、ガーデンファニチャーを置いてオープンカフェ気分を楽しむのもおススメです◎
【シューズクローク】
収納不足になりがちな玄関まわりに容量たっぷりの収納スペースを作り、靴以外にも傘やゴルフバッグ、土のついたものまでいろいろ便利に収納でき、すっきりとした玄関にできます。
【パントリー】
キッチン横の広々収納スペースです。 大容量かつどこに何を収めたかわかりやすく、食品や食器、いざという時の為に買い貯めしたものなどでごちゃごちゃしがちなキッチンを綺麗に広々と使えます。
【リビング階段】
階段をリビングの中に取り入れることで、リビングを広くお洒落に見せることができ、家族とのコミュニケーションが深まるとも言われています。
【カウンターコーナー】
リビングでの宿題はお子様の学習内容の把握ができて片付けの習慣が身に付くといわれ、コミュニケーションも取れて安心感があるので注目されています。 また、ワークスペースやちょっとした家事、カフェスペースなど、色々な使い方もできます!
【玄関手洗い】
玄関すぐに便利なセカンド洗面台を設置。 帰宅時にすぐ手洗いできるのがうれしいのはもちろん、朝の準備などにもあると便利な存在です。
【玄関ドア(スマホ開錠)】
ただいまを、もっと快適に。 登録したスマートフォンをカバンに入れたままでワンタッチ、アプリで操作、タグキーをかざす、使い慣れた手動キー……家族1人ひとりが使いやすさに合わせてセレクトできるスマートロックシステム『FamiLock』タグキー付プランです。 施解錠履歴が見れるアプリや閉め忘れ防止機能で防犯も安心。
【宅配BOX】
便利な宅配ボックスが備え付けで、荷物の受け取りがスムーズに。時間に縛られない暮らしを実現します。
【駐車2台】
普通乗用車2台がゆったりと駐車できるほどの駐車スペースがあります。
【LDK18帖以上】
18帖以上の広々としたリビングダイニングキッチンで、お好きな家具を置いてゆったりとした空間でくつろげます。
【ZEH水準省エネ住宅(性能向上計画認定住宅)】
省エネ性能を向上する対策を取り、広島市が定めた基準値をクリアし認められた環境にやさしい住宅です。 補助金の要件になっていることもあります。
- 土地
- 133.82㎡(40.48坪)
- 建物
- 111.37㎡(33.68坪)
- 完成日
- 2026年4月予定
- 建築確認
- 第R07確認建築広島市建00134号
- 価格
- 4,400万円
Facility仕様・設備
(基本仕様)
-
【ベタ基礎】
家を面で支えます。
当社基準は立上り部分の幅を150mm、地盤面からの高さを450mm(フラット35住宅技術基準より+50mm)と定め、より強くより快適によりメンテナンスしやすい仕様となっています。 -
【基礎パッキン工法】
床下の湿気対策として基礎と土台の間に特殊な硬いパッキンを敷く基礎パッキン工法を採用しています。
往来工法の1.5倍から2倍の換気効果があり、換気部分に穴を開けないので基礎部分を傷めません。 -
【制震筋かい金物(BXカネシン)】
耐震に不可欠な筋かい金物に、制震機能をハイブリッドした『DIT制震筋かい金物』を使用。揺れに耐えるだけでなく、建物の揺れを軽減して筋かいの損傷も防ぎます。 -
【ハイクリンボード(吉野石膏/シックハウス症候群対策)】
室内クロス仕上げの下地材です。
シックハウス症候群の原因となる、空気中の有害物質ホルムアルデヒドを短時間で吸収・分解してくれるので、きれいな空気の中で生活できます。 -
【外壁通気工法】
壁の内部結露を防ぐための工法です。
湿気を外部に放出することで壁内を乾燥させ、建物の耐久性と快適性を高めます。 -
【剛床根太レス工法】
床下地合板に厚みのあるものを用い、根太(ねだ)を設けない床組みです。水平方向の力に強いので、風圧や地震に対しても強い住宅になります。 -
【省令準耐火構造仕様】
建築基準法で定める準耐火構造に準ずる防火性能を持つ構造として、住宅金融支援機構が定める基準に適合しています。
一般の木造住宅より火災保険料が50%~60%安くなります。 -
【24時間換気】
従来の自然換気とは異なり、計画的に空気の入れ替えを行う事を可能とした換気設備です。 -
【カラーモニターインターホン】
ハンズフリーで見やすく、操作しやすいカラーモニターインターホンです。
スムーズな来客応対、不審な人物の確認など、便利で防犯性の高い存在です。 -
【ソフトクローズ引戸】
扉が閉まるときにゆっくりと引き込みます。指挟みの防止や開閉の騒音の軽減、扉の跳ね返りやわずかな閉め忘れを軽減します。 -
【トイレポケット収納】
あると便利なトイレ収納。備え付けなら統一感もありかさばらず、すっきり綺麗なトイレになります。 -
【窓】
断熱性・防露性・遮音性に優れたLIXILの【アルミ樹脂複合サッシ】『サーモスL』を採用。
また、2枚の板ガラスで1ユニットを構成する【ペアガラス】、日差しカット率に優れた【LOW-E】ガラスコーティングです。 -
【1F/2Fシャワートイレ】
オート開閉機能や暖房便座、セルフクリーニングなど多機能で、節電・節水にも優れています。 -
【三面鏡付洗面収納】
鏡として機能しながら、収納も兼ね備えた洗面台です。 -
【床下収納点検口】
床下収納兼点検口を設置しているため、収納力とメンテナンス性が高くなっています。 -
【浴室換気乾燥暖房】
換気乾燥暖房機能付きのお風呂なので、カビの発生を抑えて雨の日のお洗濯物干しも安心、冬場の入浴時もヒートショックを予防し、快適なバスライフと浴室の有効活用ができます。 -
【2年無料点検】
木住ではお家の完成お引渡し後、3か月、1年、2年目の無料定期点検を行っております。
完成お引き渡しからも末永くお付き合いさせていただきます。 -
【5年シロアリ保証】
防蟻処理を行っていますので、施工会社による5年間の保証がついています。 -
【10年瑕疵保証】
瑕疵とは、「欠陥」を意味します。
構造耐力上主要な部分と雨水の浸入を防止する部分を第三者機関が保証いたします。
保証機関:株式会社住宅あんしん保証 -
【15年地盤保証】
厳密な地盤調査(スウェーデン式サウンディング試験)を行い、補強や改良が必要な場合は対策を行い第三者機関で保証いたします。
保障機関:出雲建設株式会社 -
【住設あんしんサポート(10年保証)】
設備機器(給湯器、システムキッチン、システムバス、洗面化粧台、温水洗浄トイレ、インターホン)のメーカー保証(通常1~2年)を10年間ご提供いたします。
保障機関:リビング保証株式会社
各アイコンにカーソルを乗せるかタップすると説明文が表示されます
Environment周辺環境
交通:牛田東二丁目バス停徒歩4分
学区:牛田小学校、牛田中学校
用途地域:第一種低層住居専用地域、建ぺい率:50%、容積率:100%
Notices特記事項
土砂災害警戒区域(土石流)、水道負担金:137,500円、瑕疵担保保険料:80,000円 別途要
Map地図
Simulator住宅ローン簡易シミュレーター
借入金額に
を入力
毎月のお支払いめやす:
本シミュレーションは概算の目安を提供するものであり、実際の返済額や条件を保証するものではありません。
金利変動、手数料、保証料、税金などは計算に含まれていません。
正確な返済額については、金融機関にて正式な試算をご確認ください。
Contactお問い合わせ
SHARE





