安佐北区深川3丁目【建築条件付土地4区画】
2026/01/15
JR下深川駅近くに分譲宅地が誕生!
自然豊かな暮らしやすい環境で、こだわりの暮らしを♪
周辺おでかけLIST
- アルゾ 高陽深川店:徒歩16分
- アクロスプラザ高陽:徒歩15分
- フジグラン高陽:徒歩20分
- セブン-イレブン 広島深川1丁目店:徒歩17分
- 深川小学校:徒歩12分
- 高陽中学校:徒歩20分
- 深川保育園:徒歩11分
- 善徳寺幼稚園:徒歩13分
過去イベント実績
木住の推奨プラン有or今ならフリープランで建てられます
「お家づくり、何からはじめよう?」

お家でこだわりたい場所は……リビング?キッチン?書斎?収納?重要なのは……デザイン?性能?コスパ?
ベストなお家づくりは、ご家族それぞれ違います。
情報や選択肢がありすぎて、どの情報が正しくどの情報が過大で片寄ったものか、判断していくのも大変だと思います。
だから、まずはじっくりとお話をお聞かせください。
そして、どうか沢山ある選択肢のひとつとして、私たちのことを知っていただけたらと思います。
木住では一定の品質以上のものを標準仕様として設定しておりますので、そこからお客様のご要望に合わせ、柔軟にご対応。
ご予算と相談しながら、お好きな間取り・コーディネートでお家を建てることができます。
もちろん、私達木住もプロとして一生懸命間取り・コーディネートをご提案します。
大切なお家の選択肢として、ご検討ください。
一世一代の注文住宅。「どうしよう…」とお悩みの方、ご相談したいと思いましたら、いつでもご連絡ください!
参考
【工法】木造軸組工法(在来工法)
【価格】建物坪単価60万円~
まずは分譲住宅を見学してみてイメージをつくってみるのもおススメ◎
(▼区画図)

▼※以下間取りプラン、3DCGは木住おすすめの一例です。
今ならフルオーダー自由設計で夢の暮らしを叶えるチャンス♪
No.1
- 土地
- 188.72㎡(57.08坪)
- 建物
- 完成日
- 建築確認
- 価格
- 1,390万円
No.2≪モデルハウス建築予定≫
- 土地
- 164.62㎡(49.79坪)
- 建物
- 完成日
- 建築確認
- 価格
- 1,240万円
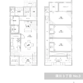
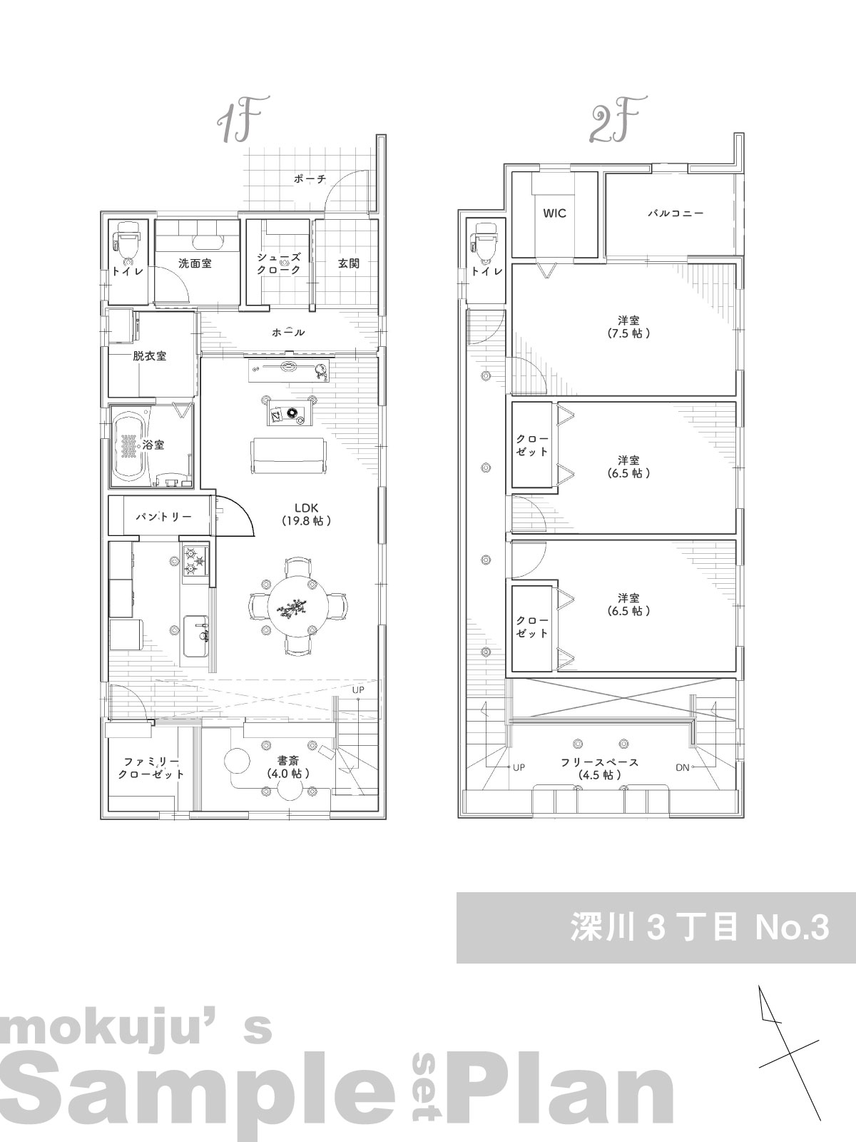
No.3
- 土地
- 156.81㎡(47.43坪)
- 建物
- 完成日
- 建築確認
- 価格
- 1,180万円
No.4
- 土地
- 134.31㎡(40.62坪)
- 建物
- 完成日
- 建築確認
- 価格
- 990万円
Facility仕様・設備
-
【ベタ基礎】
家を面で支えます。
当社基準は立上り部分の幅を150mm、地盤面からの高さを450mm(フラット35住宅技術基準より+50mm)と定め、より強くより快適によりメンテナンスしやすい仕様となっています。 -
【基礎パッキン工法】
床下の湿気対策として基礎と土台の間に特殊な硬いパッキンを敷く基礎パッキン工法を採用しています。
往来工法の1.5倍から2倍の換気効果があり、換気部分に穴を開けないので基礎部分を傷めません。 -
【制震筋かい金物(BXカネシン)】
耐震に不可欠な筋かい金物に、制震機能をハイブリッドした『DIT制震筋かい金物』を使用。揺れに耐えるだけでなく、建物の揺れを軽減して筋かいの損傷も防ぎます。 -
【ハイクリンボード(吉野石膏/シックハウス症候群対策)】
室内クロス仕上げの下地材です。
シックハウス症候群の原因となる、空気中の有害物質ホルムアルデヒドを短時間で吸収・分解してくれるので、きれいな空気の中で生活できます。 -
【外壁通気工法】
壁の内部結露を防ぐための工法です。
湿気を外部に放出することで壁内を乾燥させ、建物の耐久性と快適性を高めます。 -
【剛床根太レス工法】
床下地合板に厚みのあるものを用い、根太(ねだ)を設けない床組みです。水平方向の力に強いので、風圧や地震に対しても強い住宅になります。 -
【省令準耐火構造仕様】
建築基準法で定める準耐火構造に準ずる防火性能を持つ構造として、住宅金融支援機構が定める基準に適合しています。
一般の木造住宅より火災保険料が50%~60%安くなります。 -
【24時間換気】
従来の自然換気とは異なり、計画的に空気の入れ替えを行う事を可能とした換気設備です。 -
【カラーモニターインターホン】
ハンズフリーで見やすく、操作しやすいカラーモニターインターホンです。
スムーズな来客応対、不審な人物の確認など、便利で防犯性の高い存在です。 -
【ソフトクローズ引戸】
扉が閉まるときにゆっくりと引き込みます。指挟みの防止や開閉の騒音の軽減、扉の跳ね返りやわずかな閉め忘れを軽減します。 -
【トイレポケット収納】
あると便利なトイレ収納。備え付けなら統一感もありかさばらず、すっきり綺麗なトイレになります。 -
【窓】
断熱性・防露性・遮音性に優れたLIXILの【アルミ樹脂複合サッシ】『サーモスL』を採用。
また、2枚の板ガラスで1ユニットを構成する【ペアガラス】、日差しカット率に優れた【LOW-E】ガラスコーティングです。 -
【1F/2Fシャワートイレ】
オート開閉機能や暖房便座、セルフクリーニングなど多機能で、節電・節水にも優れています。 -
【三面鏡付洗面収納】
鏡として機能しながら、収納も兼ね備えた洗面台です。 -
【床下収納点検口】
床下収納兼点検口を設置しているため、収納力とメンテナンス性が高くなっています。 -
【浴室換気乾燥暖房】
換気乾燥暖房機能付きのお風呂なので、カビの発生を抑えて雨の日のお洗濯物干しも安心、冬場の入浴時もヒートショックを予防し、快適なバスライフと浴室の有効活用ができます。 -
【2年無料点検】
木住ではお家の完成お引渡し後、3か月、1年、2年目の無料定期点検を行っております。
完成お引き渡しからも末永くお付き合いさせていただきます。 -
【5年シロアリ保証】
防蟻処理を行っていますので、施工会社による5年間の保証がついています。 -
【10年瑕疵保証】
瑕疵とは、「欠陥」を意味します。
構造耐力上主要な部分と雨水の浸入を防止する部分を第三者機関が保証いたします。
保証機関:株式会社住宅あんしん保証 -
【15年地盤保証】
厳密な地盤調査(スウェーデン式サウンディング試験)を行い、補強や改良が必要な場合は対策を行い第三者機関で保証いたします。
保障機関:出雲建設株式会社 -
【住設あんしんサポート(10年保証)】
設備機器(給湯器、システムキッチン、システムバス、洗面化粧台、温水洗浄トイレ、インターホン)のメーカー保証(通常1~2年)を10年間ご提供いたします。
保障機関:リビング保証株式会社
Environment周辺環境
交通:JR下深川駅歩7分 深川三丁目バス停歩2分 下深川駅前バス停歩8分
学区:深川小学校、高陽中学校
用途地域:第一種住居地域、建ぺい率:60%、容積率:200%
Notices特記事項
セットバック部分(23.67㎡)持分1/4、木住販売(株)の建築条件付土地です。推奨プラン有、フリープラン可!
Map地図
Simulator住宅ローン簡易シミュレーター
毎月のお支払いめやす:
本シミュレーションは概算の目安を提供するものであり、実際の返済額や条件を保証するものではありません。
金利変動、手数料、保証料、税金などは計算に含まれていません。
正確な返済額については、金融機関にて正式な試算をご確認ください。
Contactお問い合わせ
SHARE




