#イベント
2024/9/14&15~安芸郡熊野町中溝~分譲新築一戸建て6区画完成お披露目会&木住の秋祭り
2024/9/17記
終了しました
9/14(土)~9/15(日)の2日間、当イベントは盛況の中終了いたしました。
ご来場いただいた皆様、ご協力いただいた皆様、誠にありがとうございました!
14日の夜の雨天の影響により、15日のダンボール迷路は急遽中止となり、楽しみにしていただいていた皆様には、大変申し訳ございません。
これからも家づくりを通して、楽しんでいただけるイベントやまちづくりを続けて参りたいと思いますので、今後とも、宜しくお願い致します!
この度、安芸郡熊野町中溝に新しく分譲新築一戸建てが6棟完成!
沢山の人に知って、見て、楽しんでもらいたい……
ということで、完成を記念して木住の秋祭り&特別見学会&販売会を開催!
イベントを楽しむだけでも、どんな家か気になるというだけでも、気軽に聞ける機会にご相談したいという方も……もちろん、気に入ったお家があれば購入ご予約もOK。
ぜひ、この機会に遊びにきてください!

予約特典プレゼント!
当イベントはご予約なしでもOK!ですが、事前に来場予約をしていただくと1,000円分のギフト(QUO)カードをプレゼント♪
開催日
2024年9月
14日(土)11:00~16:00
&
15日(日)11:00~15:00
場所
熊野町の中心部、熊野町役場すぐ近く!
徒歩15分圏内に『ハローズ熊野モール』があり、スーパーマーケット『ハローズ 熊野店』をはじめドラッグストア『ウォンツ』、ホームセンター『タイム』、100円ショップ『セリア』などが揃っている暮らしやすい立地です。
⚠注意事項⚠
- 駐車場は現地とは別にご用意しておりますので、お気を付けください。
- イベント当日までに一部内容が変更になる場合、天候により一部内容が中止となる場合がございます。
- ご体調がすぐれない時や発熱のある場合などは、ご来場をお控え下さい。
楽しいイベント盛り沢山!
お家の展示&クイズラリー
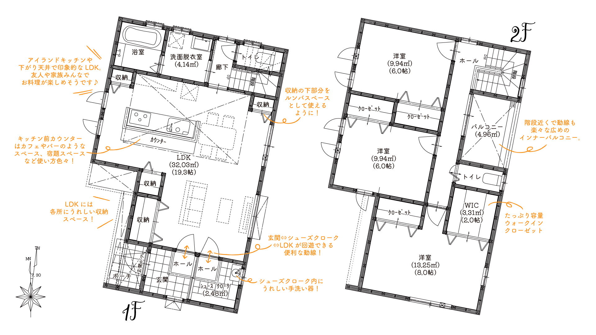
実際に建ったお家を一度に6棟回って見比べて体験できる!
それぞれ間取りプランにこだわりや特徴のあるお家です。
また、現地販売会、住宅購入、土地購入、ローン、資金プラン、お家で今お困りの事……などなど、住宅のプロに直接ご相談できるチャンスです!
後から無理な営業やしつこい勧誘は致しませんので、ご安心してお立ち寄りください♪
\全6棟こだわりポイントご紹介/
各お家を楽しみながら回れるクイズラリーも開催!
クイズに正解で貰えるボウヤ券(チケット)で遊んでさらに楽しもう♪
\ご来場の流れ/
-
①まずは入場口すぐの受付にお越しください。クイズラリー用紙や、会場MAPなどをお渡しいたします。

-
②各お家を自由に回ってクイズラリーにチャレンジ!

-
③クイズラリーを埋めたら、用紙回収場所へ。クイズに正解&さらにアンケートのご記入で『ボウヤ券』を配布!

-
④集めた『ボウヤ券』で色々なイベントを楽しめます♪

木住の秋祭り
『ボウヤ券』で好きなお菓子と交換できるだがし屋さんコーナー、スーパーボールすくいなど♪

hazaiLAB.ワークショップ
『ボウヤ券』で、木の端材を使った人気の『ビー玉ころがし』ワークショップが楽しめます。
※先着順でのご案内の為、待ち時間が発生する場合がございます

住宅端材詰め放題
『ボウヤ券』で、お家を建てる際に出る木などの端材を1袋に詰め放題でご提供!
DIYや工作に、毎回ご好評を頂いています♪

キッチンカー
『ボウヤ券』でキッチンカーも♪
9/14(土)限定
クレープ

9/15(日)限定
ジェラート

ダンボール迷路
自由に遊べるダンボール迷路コーナーをご用意♪
※天候により変更になる場合がございます

無料住宅相談コーナー
現地販売会、住宅購入、土地購入、ローン、資金プラン、お家で今お困りの事……などなど相談コーナーも。
住宅のプロに直接ご相談できるチャンスです!
後から無理な営業やしつこい勧誘は致しませんので、ご安心してお立ち寄りください♪
Special Thanks
ご協力
(敬称略・順不同・2024/09/06時点)

予約特典プレゼント!
当イベントはご予約なしでもOK!ですが、事前に来場予約をしていただくと1,000円分のギフト(QUO)カードをプレゼント♪
↓来場ご予約はこちら↓
(時間帯は大体の目安で大丈夫です◎)
AJAX通信に失敗したか、nonceの検証に失敗しました。 このエラーが繰り返し発生する場合は、セキュリティ関連のプラグインによってアクセスがブロックされている可能性があります。 「公開ページでのAJAX通信のURLを選択」と「公開ページでのAJAX通信でNonceの値の検証で使う関数を選択」の値の変更をBooking Package > 一般設定で行ってください。
| ID | 予約日時 | カレンダー | 状態 |
|---|
SHARE























